Residents at The Four Seasons in Brickell are getting a new neighbor, and we are proud to have helped our buyer client find such a custom gem of a home in the sky at such a great price. The residence closed at $4.1 million, or $1200/ft!
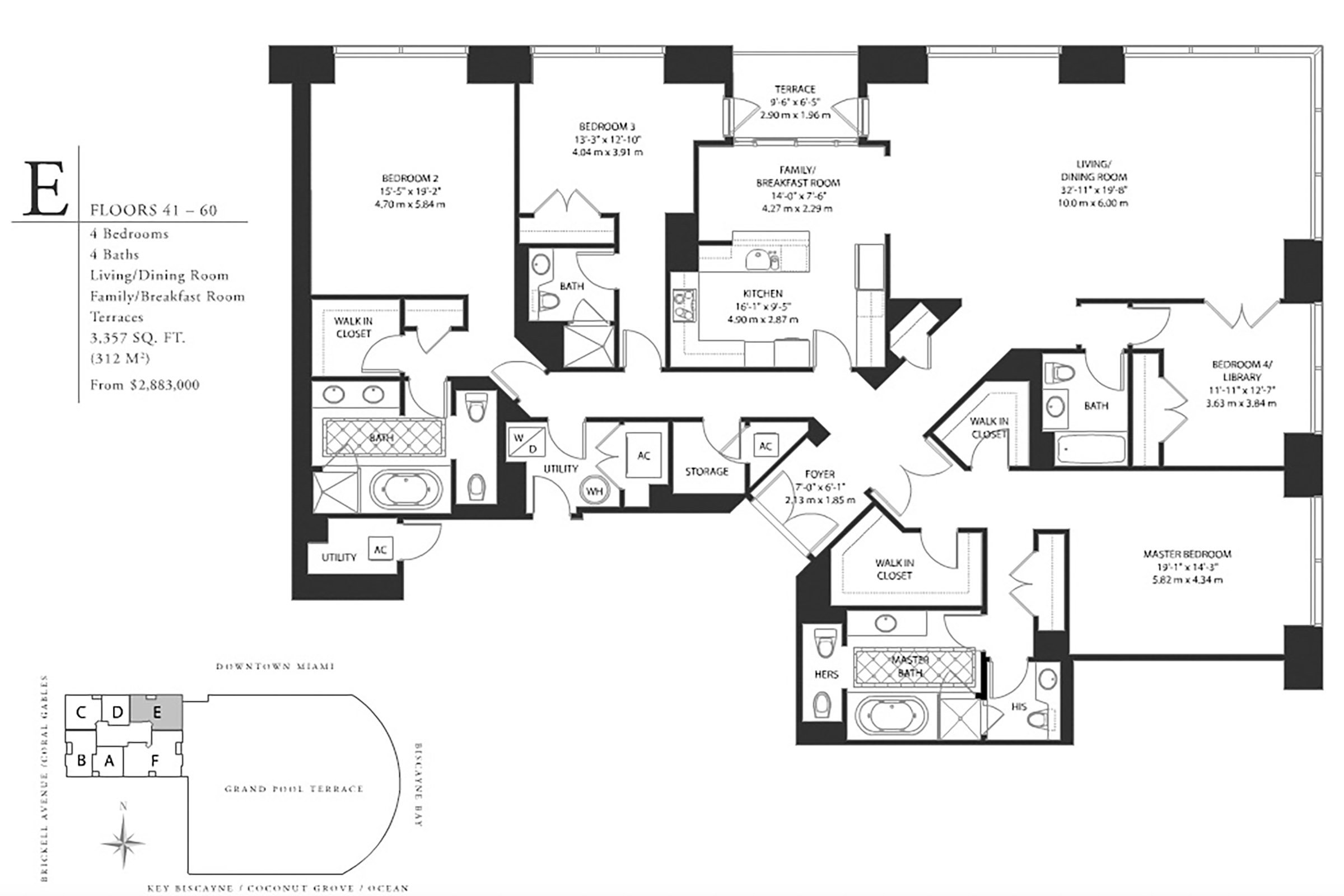
Residence 58E is located on the 58th floor of the tower with sweeping views of the Biscayne Bay and ocean to the east as well as beautiful and animated Brickell views to the north. The floor plan shows 4 bedrooms, however the interior designer has changed one of the rooms to a beautiful waterfront bar for entertaining guests and just relaxing in the evenings.

The interiors have been customized by world renowned interior designer, Luis Bustamante. Hailing from Madrid, he is commonly known to bring his talents to New York, Miami, London, Gstaad, Dominican Republic, Mexico among others. For Four Seasons Miami 58E, he included custom marble floors and imported custom ceilings.

Some may say that $1200/ft is awful high for a 3 bedroom apartment, but let’s remember a few things…
First, this is the most desirable floor plan in the building because of the layout and direct water view. Also, it is the Four Seasons. The Four Seasons is among the pinnacle of luxury and service brands. The apartment is customized and if you also think the apartment is beautiful, there is one available down on the 41st floor for $5.9M. So, our new neighbor is going to move in with instant equity.
If you are also interested in finding a stellar deal in the area, please contact Michael Light, Broker and Executive Director of Luxury Sales at Douglas Elliman. You may reach Michael directly at (786) 566-1700 or via email at michael@miamiluxuryhomes.com.